Beech Park
Project Overview
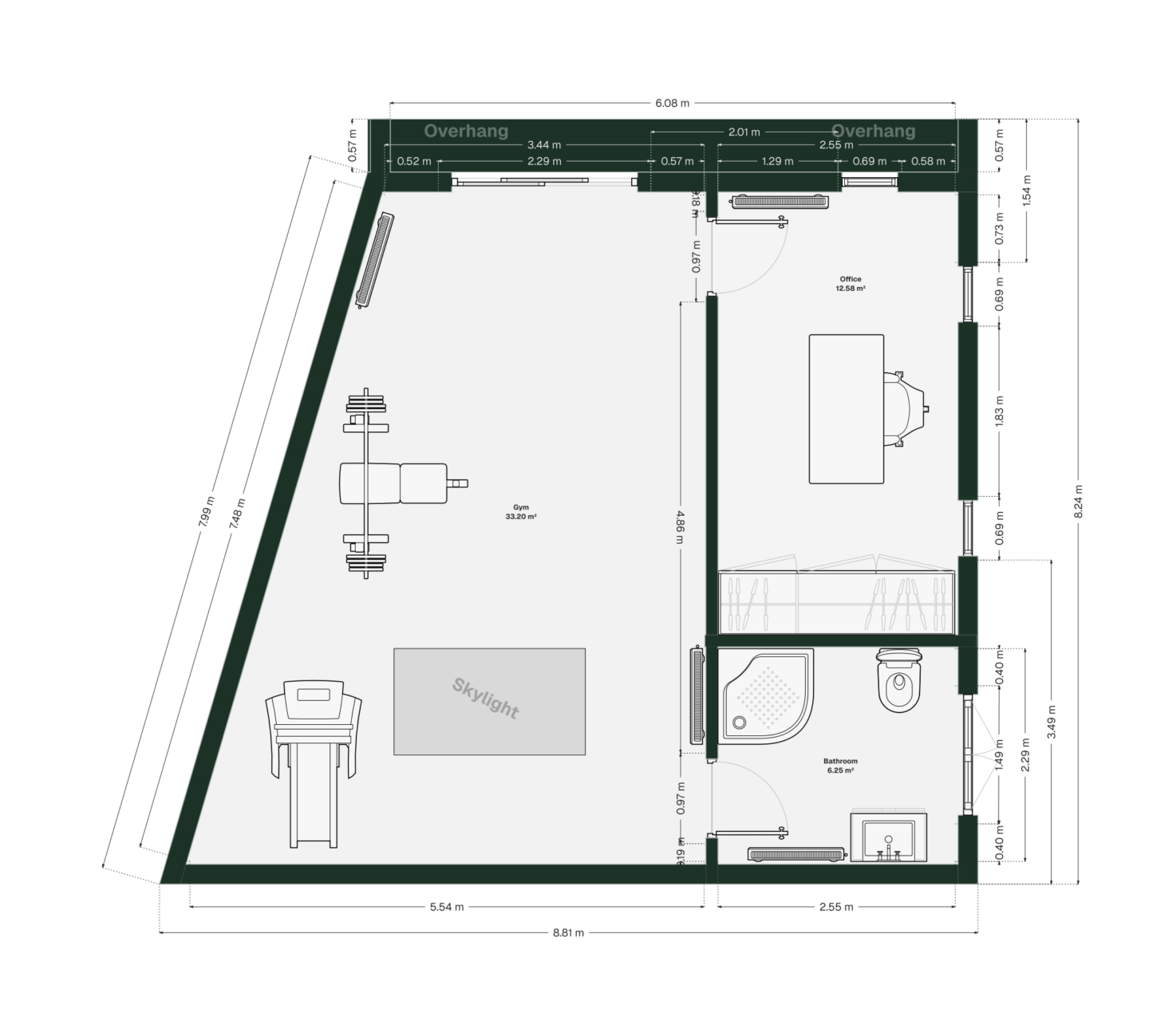
This bespoke 7.2m x 5m Garden Room was thoughtfully designed to create a striking, multifunctional space that blends modern architecture with exceptional comfort and performance. Featuring a distinctive, unique shape, the structure stands out as a contemporary garden feature while providing a highly practical interior suitable for living, working, or training.
A key highlight of the design is the large architectural skylight, which floods the interior with natural daylight and creates a bright, uplifting atmosphere throughout the day. Combined with anthracite double-glazed windows and doors, the building offers a sleek, modern appearance while maximizing energy efficiency and thermal comfort.
The space was carefully planned to maintain a large open-plan area, complemented by a private bathroom and a compact office, making it ideal for a home studio, workspace, guest accommodation, or wellness area. Built with premium materials and advanced insulation systems, the garden room delivers outstanding comfort year-round.
-
Location: Dublin – Ireland
-
Size: 39
-
Year: 2026
-
Services: Garden Rooms

Project Details
Type: Contemporary Garden Room / Multi-Purpose Space
Foundation: Timber pad foundation system designed for stability, minimal ground disruption, and fast installation.
Structure: Precision-engineered timber frame construction, ensuring structural strength, durability, and excellent thermal performance.
Dimensions: 7.2m x 5m footprint, enhanced by a unique architectural shape that creates a dynamic interior layout and distinctive external appearance.
Windows & Doors: Premium anthracite uPVC double-glazed windows and doors, providing excellent insulation, durability, and a modern architectural finish.
Skylight: A large, high-performance skylight positioned centrally within the roof, delivering abundant natural light and creating a bright, open atmosphere while enhancing the visual connection with the outdoors.
Roof: High-performance roofing system designed for durability, weather resistance, and long-term protection.
Insulation & Build Quality
The structure was built using high-specification insulation and airtight construction techniques, ensuring superior thermal efficiency and indoor comfort.
Mineral Wool Insulation: High-density mineral wool insulation installed throughout the walls and roof, offering excellent thermal performance as well as acoustic insulation.
Vapour Barrier: A professional vapour barrier system installed to control moisture movement and protect the building structure.
Enhanced Internal Insulation: All external walls and ceilings feature additional insulated plasterboard, significantly improving energy efficiency and creating a comfortable indoor environment in all seasons.
Open Plan Space:
A large, flexible open area designed to adapt to various uses such as a home gym, studio, lounge, or creative workspace.
Bathroom:
Modern and compact, fitted with high-quality fixtures for convenience and everyday functionality.
Office:
A small, dedicated office space providing privacy and focus, perfect for remote work or study.
Energy Efficiency:
The combination of mineral wool insulation, vapour barrier protection, insulated plasterboard, and double-glazed windows ensures minimal heat loss and excellent year-round comfort.
Natural Lighting:
The oversized skylight and large windows allow sunlight to fill the interior, reducing reliance on artificial lighting while creating a bright and inspiring space.
Comfort & Versatility:
The highly insulated structure makes the garden room ideal for working, living, exercising, or training, maintaining a stable and comfortable indoor climate regardless of the season.
Summary
This 7.2m x 5m bespoke garden room demonstrates how thoughtful architecture and high-quality construction can transform a garden structure into a premium multifunctional living space. With its unique shape, expansive skylight, superior insulation system, and modern anthracite glazing, the project offers a perfect balance of style, performance, and flexibility.
Designed for maximum comfort and durability, this garden room provides an inspiring environment for work, relaxation, creativity, or fitness, proving that exceptional design can elevate even the most compact spaces into something truly special.
Enquiry Form
Fill out the form below and our staff will be in touch!













